【福岡】キャンパスタウン糸島No.18-9
#彩家
#福岡
#ZEH水準
#リビング階段
#シューズクローク
#制震装置 MIRAIE
#タタミコーナー
#福岡営業所
#パントリー
#糸島
彩家


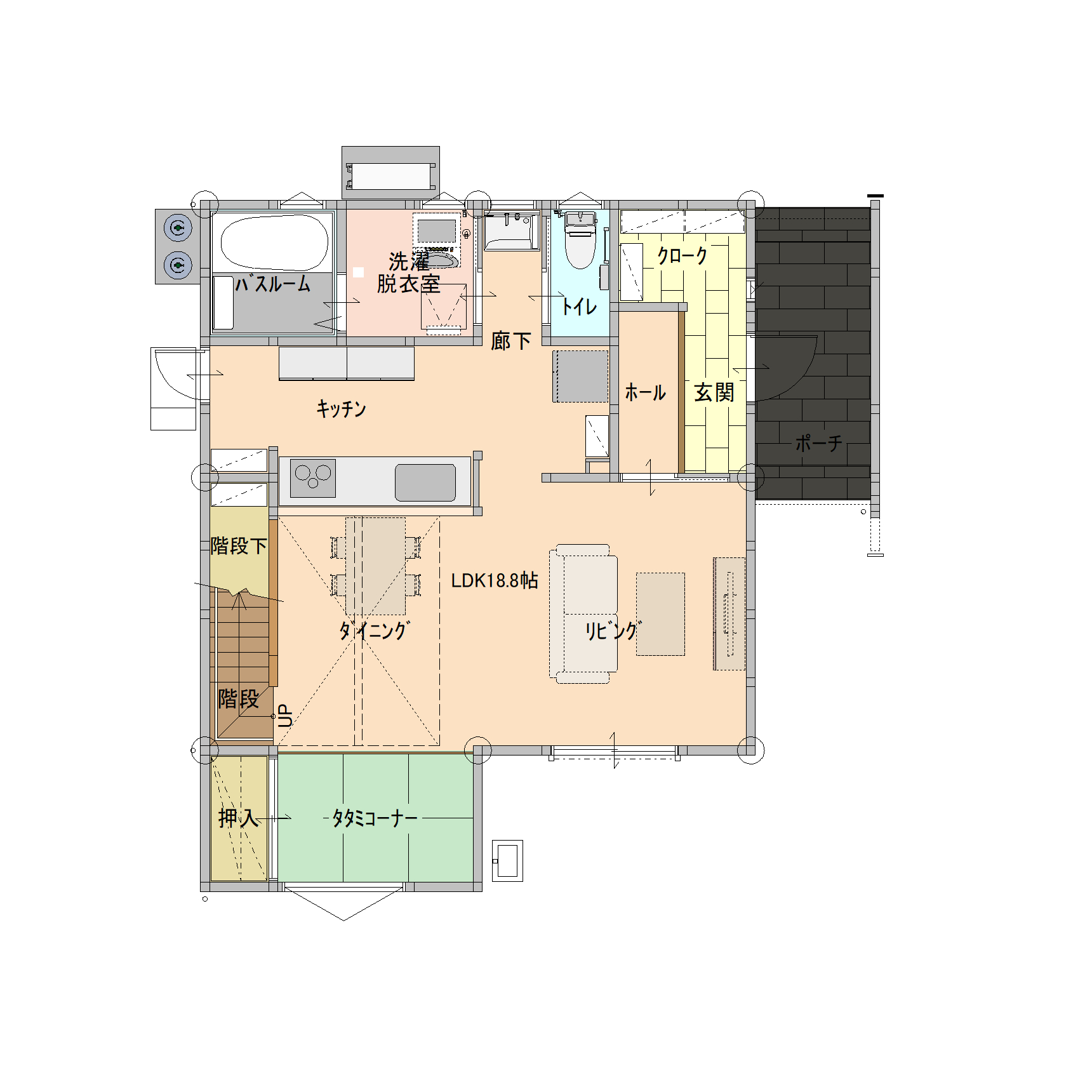
18帖のLDK
毎日の食卓がちょっと特別になる吹抜けのダイニング
玄関にシューズクローク
お昼寝にタタミコーナー
洗面と脱衣室を分けた間取り



事前にご予約いただければご見学はいつでも可能です
こちらの物件は
【福岡営業所】
でご相談承ります

基本情報
- 物件名
- キャンパスタウン糸島No.18-9
- 所在地
- 福岡県糸島市泊字カタヘ2178Googlemap
- 交通
- 昭和バス 桂木バス停まで徒歩7分
JR糸島高校駅まで車で5分
- 周辺環境
- JR筑前前原駅まで約3,570m
泊保育所まで約600m
とまりの森保育園約900m
元岡幼稚園まで約1,100m
東風小学校まで約1,850m
前原西中学校約4,200m
九州大学伊都キャンパスまで約2,900m
セブン‐イレブンまで約850m
イオン糸島ショッピングセンターまで約2,940m
- 価格
- 4,895万円(税込)
- 敷地面積
- 230.83㎡(69.82坪)
- 延床面積
- 105.37㎡(31.87坪)
- 間取り
- 3LDK+タタミコーナー
- 完成時期
- 2026年3月予定
- 建物構造
- 木造2階建て
- 屋根
- ガルバリウム鋼板
- 外壁
- サイディング
- 都市計画区域
- 市街化調整区域
- 用途地域
- 指定なし
- 地域地区・その他
- 泊大塚溜池南地区 地区計画
- 宅内道路、接続道路状態
- 開発道路(アスファルト舗装、私道負担無し)幅員:6m
- 建築確認番号
- 福住セ筑00167号
- その他記載事項
- ①エネファーム設置 ②良好な「まちなみ」を形成するため「街並みルール」を定めています。 ③水道加入金(口径13mmの場合:税込110,000円)および各種審査・検査・申請手数料が別途必要となります。
- 設備(その他)
-
-
自動食器
洗乾燥機 -
IHクッキングヒーター
-
駐車2台可
-
駐車3台可
-
オール電化
-
ウォークイン
クローゼット -
パントリー
-
シューズ
クローク -
室内物干
(分譲住宅に含まれている設備、費用)
●システムキッチン●ユニットバス●電気、水道、排水(屋内、外工事)●シャワー器具●洗面ユニット●3ヶ所給湯配管(エネファーム)●吹付け断熱材●網戸(玄関除く)●散水栓●サッシ/アルミ樹脂複合構造(断熱枠+遮熱断熱Low-E複層ガラス)、シャッター雨戸(1F:1ヶ所)●TVドアホン●水洗トイレ●第三種換気方式●住宅火災警報器(煙感知)●境界塀、フェンス●外構工事●消費税
●リビングエアコン(1台)●照明器具LED(全室)
※平面図の家具、家電は含まれません -
- 引渡し可能年月日
- 相談
- 情報公開日
- 更新日:2026年1月9日/次回更新予定日:2026年1月23日/取引条件の有効期限:次回更新予定日
間取り



